Priceless Milano是一个临时设施,是一个设计在现有建筑物上的活动单元。 该展馆设计为餐厅或其他功能性设施,安装在米兰德拉斯卡拉广场的Palazzo Beltrami顶部。
餐厅的设计类似于旅游美食剧院,“Carro di Tespi”(旅游剧团),邀请来自世界各地的厨师轮流在客人面前展示他们的烹饪技巧。 展馆的建筑设计与建筑设计公司Park Associati一致,是一种非常独特但不夸张的形式,与周围建筑形成鲜明对比,但并未违反。
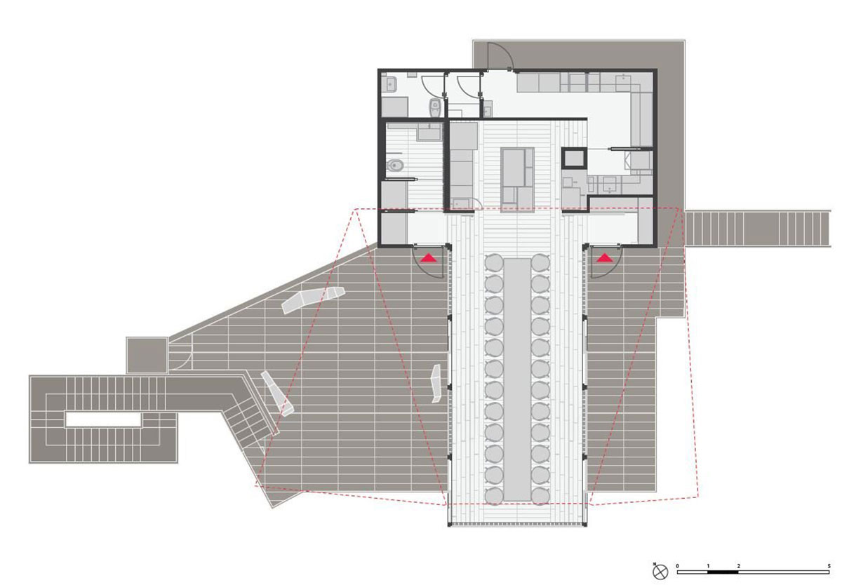
餐厅只有一张桌子,仅可容纳24位客人, 滑动墙将厨房区与用餐区隔开, 桌子可以升到天花板,空间完全打开, 通往户外露台的门位于用餐区最长的一侧。
